
Thành phố Đà Nẵng đang chứng kiến một bước ngoặt lớn trong phát triển đô thị khi vừa chính thức chấp thuận chủ trương đầu tư cho dự án khu đô thị quy mô lên đến 13.000 tỷ đồng tại khu vực Bà Nà. Đây là một trong những dự án bất động sản lớn nhất từng được triển khai tại thành phố biển này, hứa hẹn sẽ tạo ra những thay đổi tích cực không chỉ cho diện mạo đô thị mà còn cho toàn bộ nền kinh tế địa phương. Với quy mô đầu tư khổng lồ và vị trí chiến lược tại xã Bà Nà và phường Hòa Khánh, dự án này được kỳ vọng sẽ trở thành động lực quan trọng thúc đẩy sự phát triển bền vững của Đà Nẵng trong những năm tới. Việc có được sự chấp thuận từ chính quyền địa phương cho thấy tầm quan trọng và tiềm năng to lớn của dự án đô thị này trong chiến lược phát triển tổng thể của thành phố.
Thông tin chi tiết về dự án khu đô thị Đông Nam sườn đồi Bà Nà

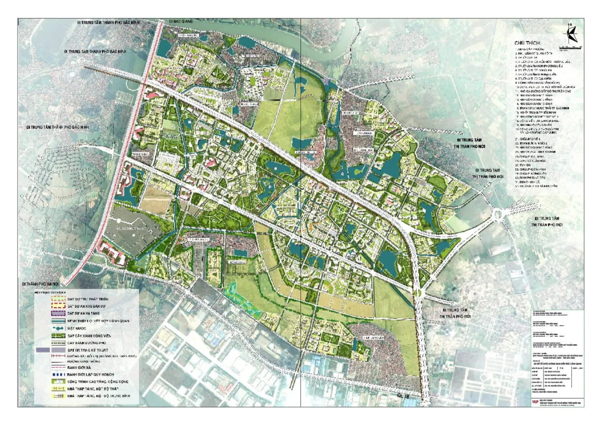
Dự án khu đô thị Đông Nam sườn đồi với tổng vốn đầu tư 13.000 tỷ đồng được triển khai trên khu vực rộng lớn bao gồm xã Bà Nà thuộc huyện Ba Vì và phường Hòa Khánh thuộc quận Liên Chiểu. Đây là một trong những dự án đô thị hiện đại và quy mô nhất mà Đà Nẵng từng chấp thuận, với tầm nhìn tạo ra một không gian sống hoàn hảo kết hợp giữa yếu tố tự nhiên và công nghệ hiện đại.. Tìm hiểu thêm về nang khu thi
Theo thông tin được công bố, khu đô thị này sẽ bao gồm nhiều phân khu chức năng khác nhau, từ khu dân cư cao cấp, khu thương mại dịch vụ, đến các công trình công cộng phục vụ cộng đồng. Việc lựa chọn vị trí tại sườn đồi Bà Nà không chỉ tận dụng được lợi thế về cảnh quan tự nhiên mà còn thuận lợi cho việc kết nối với các khu vực trung tâm của thành phố.. Tìm hiểu thêm về khu đô thị núi Cô Tiên Nha Trang
Quy hoạch tổng thể của dự án được thiết kế theo tiêu chuẩn quốc tế, đảm bảo sự hài hòa giữa không gian xanh và các công trình xây dựng. Điều này thể hiện cam kết của nhà đầu tư trong việc tạo ra một khu đô thị bền vững, thân thiện với môi trường và nâng cao chất lượng cuộc sống cho cư dân., xem thêm bài viết Izumi City, đô thị theo mô hình TOD phong cách Nhật
Tại sao dự án khu đô thị 13.000 tỷ đồng tại Bà Nà lại thu hút sự quan tâm lớn?

Việc Đà Nẵng chấp thuận một dự án với quy mô đầu tư lên đến 13.000 tỷ đồng tại khu vực Bà Nà đã thu hút sự chú ý đặc biệt từ các nhà đầu tư và người dân. Lý do chính khiến dự án này trở thành tâm điểm chính là vị trí địa lý đắc địa và tiềm năng phát triển to lớn của khu vực.. Tìm hiểu thêm về Khu đô thị Berjaya
Khu vực Bà Nà nổi tiếng với điểm du lịch Bà Nà Hills đã trở thành biểu tượng của du lịch Đà Nẵng, thu hút hàng triệu lượt khách mỗi năm. Việc phát triển khu đô thị tại đây sẽ tận dụng được lợi thế sẵn có về hạ tầng giao thông và sức hút du lịch, tạo ra một hệ sinh thái hoàn chỉnh kết hợp giữa du lịch, nghỉ dưỡng và sinh sống.. Tìm hiểu thêm về khu đô thị mới Điện Biên
Bên cạnh đó, chính sách thu hút đầu tư của Đà Nẵng trong thời gian qua đã tạo ra môi trường thuận lợi cho các dự án lớn. Sự ổn định về chính sách và cam kết hỗ trợ từ chính quyền địa phương là những yếu tố quan trọng giúp các nhà đầu tư có thêm niềm tin khi quyết định rót vốn vào những dự án quy mô lớn như thế này.
Lợi thế về vị trí địa lý và kết nối giao thông
Vị trí của khu đô thị Đông Nam sườn đồi Bà Nà có nhiều ưu điểm vượt trội về mặt kết nối giao thông. Khu vực này nằm trên tuyến đường quan trọng nối từ trung tâm thành phố đến khu du lịch Bà Nà Hills, đảm bảo khả năng tiếp cận thuận tiện cho cả cư dân và du khách.
Hệ thống giao thông hiện tại đã được đầu tư nâng cấp để phục vụ hoạt động du lịch, tạo ra nền tảng vững chắc cho việc phát triển khu đô thị. Từ dự án này, cư dân có thể dễ dàng di chuyển đến sân bay quốc tế Đà Nẵng, trung tâm thành phố, và các khu vực kinh tế trọng điểm khác chỉ trong thời gian ngắn.
Quy trình phê duyệt và triển khai dự án đô thị tỷ đồng tại Đà Nẵng

Để có được sự chấp thuận chủ trương đầu tư cho một dự án quy mô 13.000 tỷ đồng, nhà đầu tư đã phải trải qua một quy trình đánh giá nghiêm ngặt và toàn diện từ các cơ quan chức năng của Đà Nẵng. Quá trình này bao gồm nhiều giai đoạn khác nhau, từ thẩm định về tác động môi trường, khả thi kinh tế, đến đánh giá về tác động xã hội.
Giai đoạn đầu tiên là việc nộp hồ sơ đề xuất dự án với đầy đủ các báo cáo nghiên cứu khả thi, báo cáo đánh giá tác động môi trường, và các tài liệu pháp lý cần thiết. Các cơ quan chuyên môn của thành phố đã tiến hành thẩm định kỹ lưỡng mọi khía cạnh của dự án để đảm bảo tính khả thi và phù hợp với quy hoạch tổng thể.
Sau khi được các sở ngành thẩm định và có ý kiến tán thành, dự án được trình lên Ủy ban Nhân dân thành phố để xem xét và chấp thuận chủ trương đầu tư. Việc có được sự đồng thuận này cho thấy dự án khu đô thị Bà Nà đã đáp ứng được tất cả các tiêu chí về quy hoạch, môi trường, và hiệu quả kinh tế – xã hội.
Các bước triển khai tiếp theo
Sau khi có chấp thuận chủ trương đầu tư, nhà đầu tư sẽ tiến hành các thủ tục tiếp theo để chính thức khởi công dự án. Bước đầu tiên là hoàn thiện hồ sơ xin cấp giấy phép đầu tư, trong đó bao gồm bản thiết kế chi tiết, kế hoạch triển khai cụ thể, và cam kết về tiến độ thực hiện.
Đồng thời, việc giải phóng mặt bằng và chuẩn bị hạ tầng cũng sẽ được triển khai song song để đảm bảo tiến độ tổng thể của dự án. Theo kế hoạch dự kiến, những hạng mục đầu tiên của khu đô thị có thể sẽ được khởi công trong nửa cuối năm 2026.
Những lưu ý quan trọng cho nhà đầu tư quan tâm đến dự án Bà Nà

Mặc dù dự án khu đô thị 13.000 tỷ đồng tại Bà Nã đã nhận được sự chấp thuận về chủ trương đầu tư, các nhà đầu tư quan tâm cần lưu ý một số điểm quan trọng trước khi đưa ra quyết định đầu tư. Đầu tiên, cần phân biệt rõ giữa chấp thuận chủ trương đầu tư và việc chính thức triển khai dự án. Hiện tại, dự án mới chỉ được thông qua về mặt nguyên tắc và vẫn cần hoàn thành nhiều thủ tục pháp lý khác.
Việc theo dõi tiến độ cập nhật thông tin chính thức từ các cơ quan chức năng là vô cùng cần thiết để tránh những thông tin sai lệch hoặc không chính xác. Các nhà đầu tư nên tham khảo thông tin từ những nguồn uy tín và chờ đợi những thông báo chính thức về tiến độ triển khai cụ thể.
Bên cạnh đó, việc đánh giá kỹ lưỡng về khả năng tài chính và uy tín của chủ đầu tư cũng là yếu tố quan trọng cần xem xét. Một dự án với quy mô đầu tư lên đến 13.000 tỷ đồng đòi hỏi năng lực tài chính và kinh nghiệm quản lý dự án rất lớn từ phía nhà đầu tư.
Phân tích rủi ro và cơ hội đầu tư
Như bất kỳ dự án đầu tư bất động sản quy mô lớn nào, khu đô thị Bà Nà cũng tiềm ẩn cả cơ hội và rủi ro. Về mặt tích cực, vị trí gần khu du lịch nổi tiếng và sự hỗ trợ từ chính quyền địa phương là những yếu tố thuận lợi cho sự thành công của dự án.
Tuy nhiên, các nhà đầu tư cũng cần cân nhắc về những thách thức có thể gặp phải, bao gồm biến động thị trường bất động sản, thay đổi chính sách, và tình hình kinh tế vĩ mô. Việc đánh giá cẩn thận và tham khảo ý kiến từ các chuyên gia tư vấn là điều cần thiết trước khi đưa ra quyết định đầu tư cuối cùng.
Tác động tích cực của dự án đối với thị trường bất động sản Đà Nẵng 2026

Việc Đà Nẵng chấp thuận dự án khu đô thị 13.000 tỷ đồng tại Bà Nã đã tạo ra làn sóng tích cực trên thị trường bất động sản địa phương. Theo các chuyên gia phân tích, sự xuất hiện của một dự án quy mô lớn như vậy sẽ có tác động lan tỏa đến toàn bộ khu vực xung quanh, không chỉ về mặt giá trị bất động sản mà còn về cơ hội việc làm và phát triển kinh tế.
Thống kê từ các đơn vị nghiên cứu thị trường cho thấy, trong quý I năm 2026, mức quan tâm đến bất động sản khu vực Bà Nà và các vùng lân cận đã tăng lên đáng kể so với cùng kỳ năm trước. Điều này phản ánh kỳ vọng của các nhà đầu tư về tiềm năng tăng trưởng mạnh mẽ của khu vực trong thời gian tới.
Việc có một dự án đô thị hiện đại và quy mô lớn cũng góp phần nâng cao hình ảnh và vị thế của Đà Nẵng trên bản đồ bất động sản cả nước. Thành phố biển này ngày càng khẳng định được vai trò quan trọng trong việc thu hút đầu tư và phát triển đô thị bền vững.
Số liệu thống kê về thị trường bất động sản Đà Nẵng
Theo báo cáo mới nhất từ Sở Xây dựng Đà Nẵng, tổng vốn đầu tư vào lĩnh vực bất động sản của thành phố trong năm 2025 đã đạt mức kỷ lục, tăng 25% so với năm trước đó. Trong đó, các dự án quy mô lớn như khu đô thị Bà Nã đóng vai trò quan trọng trong việc thúc đẩy con số này.
Giá bất động sản tại các khu vực có tiềm năng phát triển cao như Bà Nã, Hòa Khánh đã ghi nhận mức tăng trưởng ổn định trong những tháng gần đây. Đặc biệt, sau thông tin về việc chấp thuận dự án khu đô thị 13.000 tỷ đồng, nhiều dự án nhỏ lẻ trong khu vực cũng được hưởng lợi từ hiệu ứng tích cực này.
Câu hỏi thường gặp về dự án khu đô thị Bà Nã
Khi nào dự án khu đô thị 13.000 tỷ đồng ở Bà Nã chính thức khởi công?
Hiện tại, dự án mới chỉ được chấp thuận chủ trương đầu tư và vẫn cần hoàn thành các thủ tục pháp lý còn lại. Theo kế hoạch dự kiến, những hạng mục đầu tiên có thể được khởi công trong nửa cuối năm 2026, tuy nhiên thời gian cụ thể còn phụ thuộc vào tiến độ hoàn thành các thủ tục cần thiết và việc chuẩn bị mặt bằng.
Ai là chủ đầu tư của dự án đô thị Đông Nam sườn đồi Bà Nã?
Thông tin chi tiết về chủ đầu tư dự án sẽ được công bố chính thức sau khi hoàn tất các thủ tục cấp giấy phép đầu tư. Tuy nhiên, với quy mô đầu tư 13.000 tỷ đồng, đây chắc chắn là một tập đoàn hoặc liên danh các công ty có năng lực tài chính và kinh nghiệm triển khai dự án lớn.
Dự án có tác động gì đến việc làm cho người dân địa phương?
Với quy mô đầu tư khổng lồ, dự án khu đô thị Bà Nã dự kiến sẽ tạo ra hàng nghìn việc làm trực tiếp và gián tiếp cho người dân địa phương. Từ giai đoạn xây dựng đến vận hành, dự án sẽ cần một lượng lớn lao động trong nhiều lĩnh vực khác nhau, từ xây dựng, dịch vụ đến quản lý vận hành.
Khu đô thị này có những tiện ích gì nổi bật?
Mặc dù thông tin chi tiết về các tiện ích chưa được công bố đầy đủ, theo kế hoạch ban đầu, khu đô thị sẽ bao gồm các khu dân cư hiện đại, trung tâm thương mại, khu vui chơi giải trí, và các công trình công cộng phục vụ cộng đồng. Việc tận dụng lợi thế về cảnh quan tự nhiên và kết nối với khu du lịch Bà Nã Hills cũng sẽ là điểm nhấn đặc biệt của dự án.
Giá bán dự kiến của các sản phẩm trong dự án là bao nhiêu?
Thông tin về giá bán các sản phẩm bất động sản trong khu đô thị Bà Nã chưa được tiết lộ chính thức. Giá cả sẽ được xác định dựa trên nhiều yếu tố như vị trí cụ thể, loại hình sản phẩm, và tiến độ triển khai dự án. Các nhà đầu tư quan tâm nên theo dõi thông tin chính thức từ chủ đầu tư khi dự án chính thức ra mắt thị trường.
Dự án khu đô thị 13.000 tỷ đồng tại Bà Nã đánh dấu một cột mốc quan trọng trong chiến lược phát triển đô thị của Đà Nẵng. Với quy mô đầu tư khổng lồ và vị trí chiến lược, dự án không chỉ hứa hẹn mang lại những cơ hội đầu tư hấp dẫn mà còn góp phần nâng tầm vị thế của thành phố biển trên bản đồ bất động sản cả nước. Tuy nhiên, việc theo dõi chặt chẽ tiến độ triển khai và các thông tin chính thức từ chủ đầu tư là điều cần thiết để các nhà đầu tư có thể đưa ra những quyết định sáng suốt. Với sự hỗ trợ từ chính quyền địa phương và tiềm năng to lớn của khu vực, dự án Đà Nẵng sẽ có khu đô thị 13.000 tỷ đồng ở Bà Nã chắc chắn sẽ trở thành một điểm sáng trong bức tranh phát triển bất động sản của thành phố trong những năm tới.
